Website by Conversion Research
307 Katz Avenue
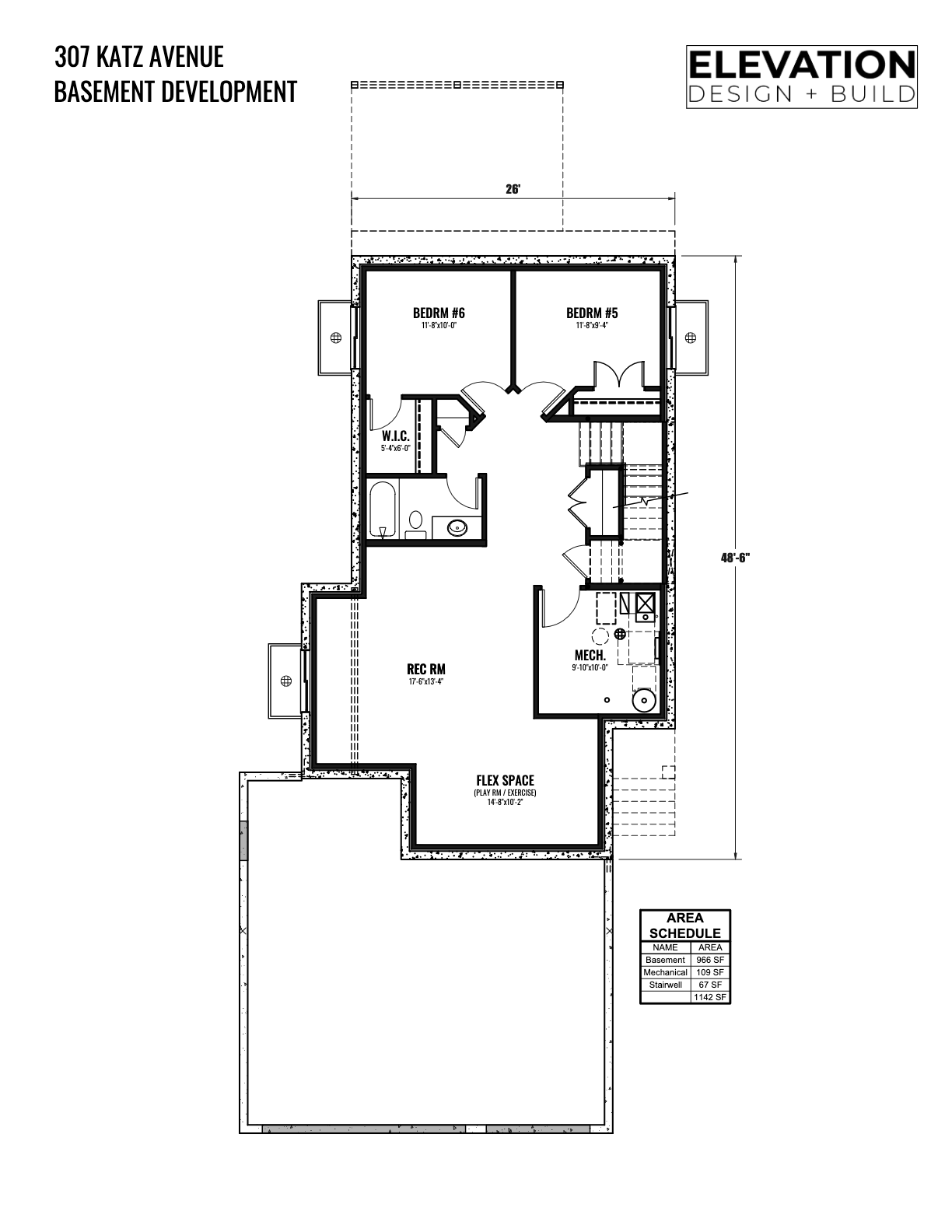
307 Katz Avenue feels expansive yet welcoming, with a layout that balances openness and comfort. The main floor flows naturally from room to room, creating an easy, connected atmosphere for everyday living and gatherings. Upstairs offers a sense of privacy and retreat, while the fully developed basement adds depth and flexibility without feeling separate from the home. Large, well-proportioned spaces and thoughtful transitions throughout give the home a bright, grounded presence — spacious enough to grow into, yet warm enough to truly settle in.
Where thoughtful design meets everyday living.
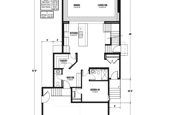
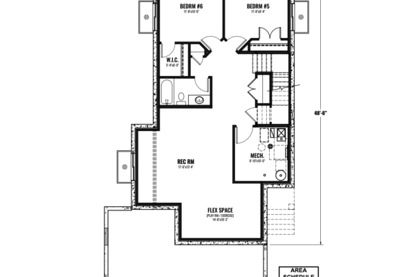
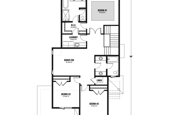
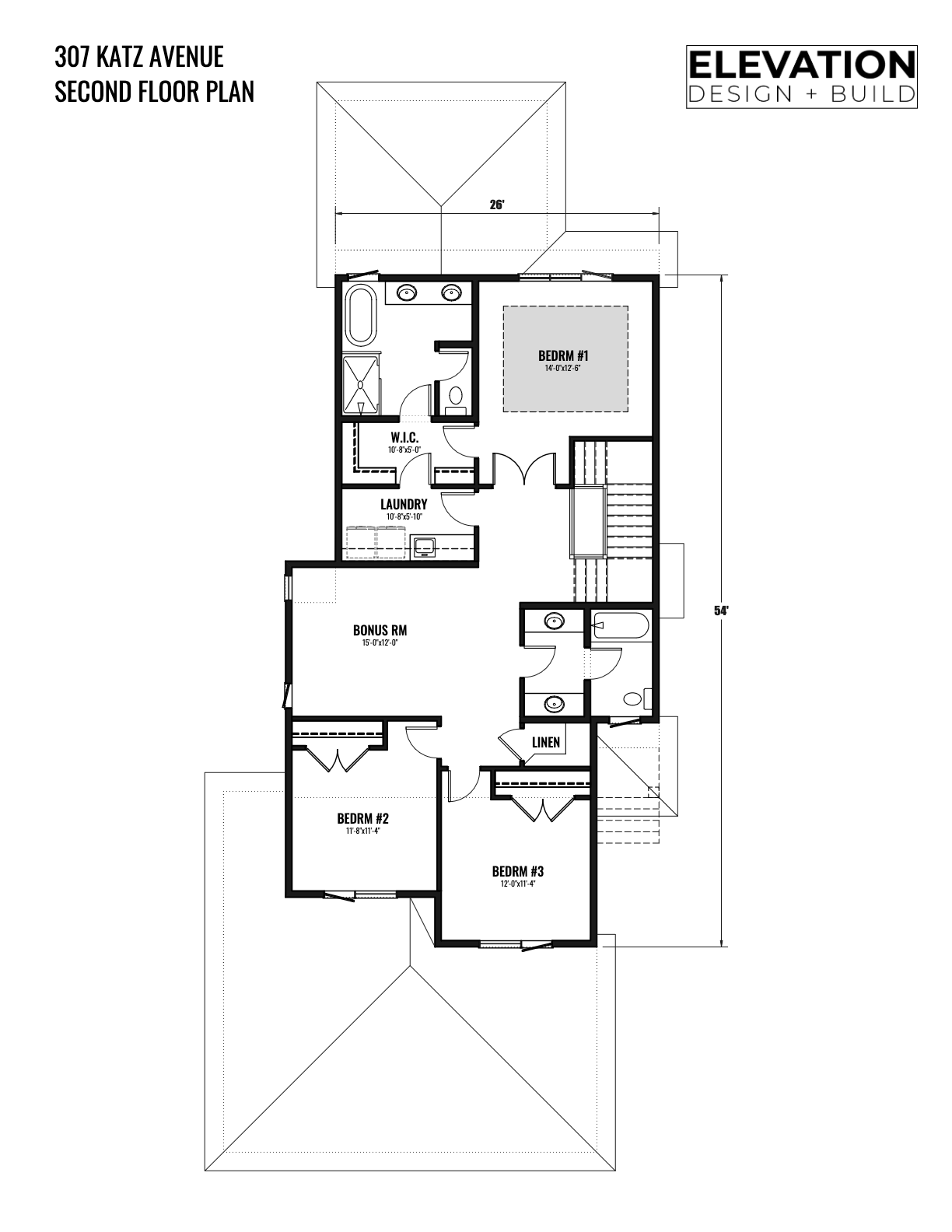
307 Katz Avenue offers over 2,598 square feet of above-grade living space, with 1,297 sq. ft. on the main floor and 1,301 sq. ft. on the second level. The home features four bedrooms upstairs plus a main-floor bedroom, multiple living areas including a spacious bonus room, a well-appointed kitchen with a large walk-in pantry, upper-level laundry, and a functional mudroom connecting to an oversized 747 sq. ft. triple-car garage. A 204 sq. ft. covered deck extends the living space outdoors. The home feels open and connected through its central living, dining, and kitchen areas, yet balanced with defined rooms that provide privacy and comfort. Generous proportions and a thoughtful layout create a space that feels bright, substantial, and designed for everyday living.



