Website by Conversion Research
106 Cockcroft Manor
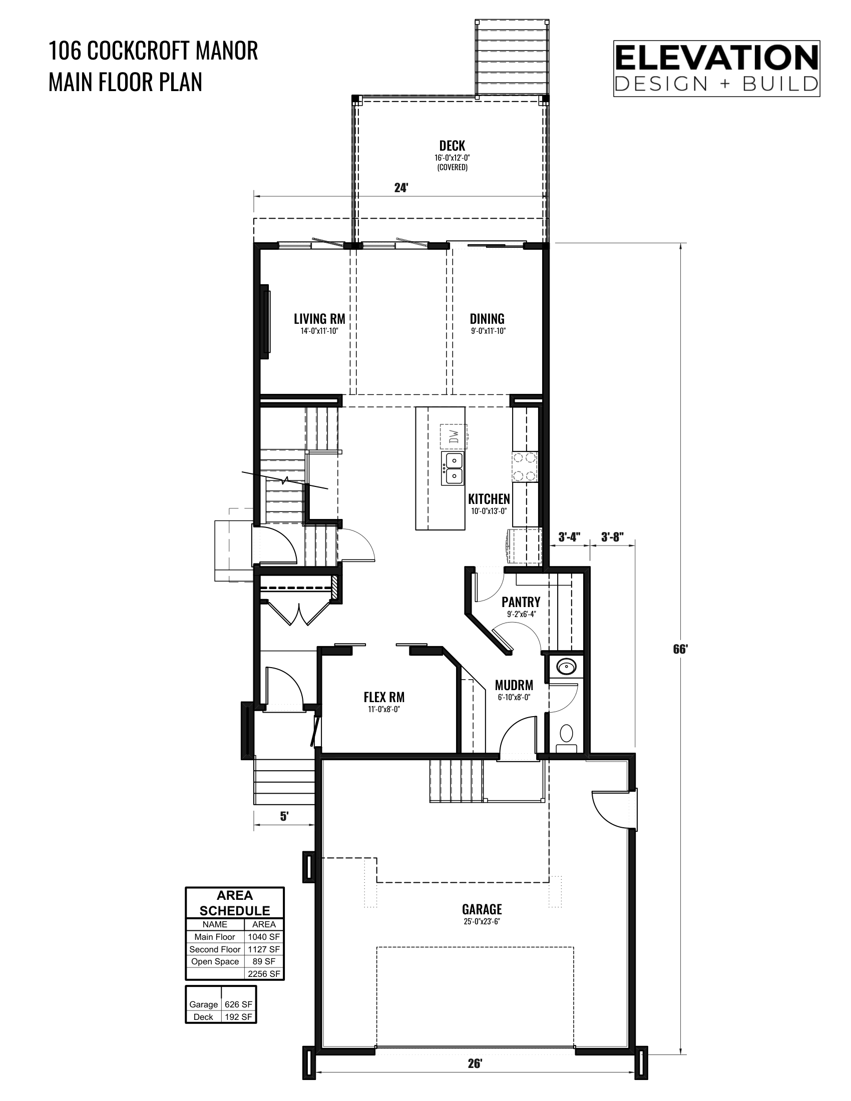
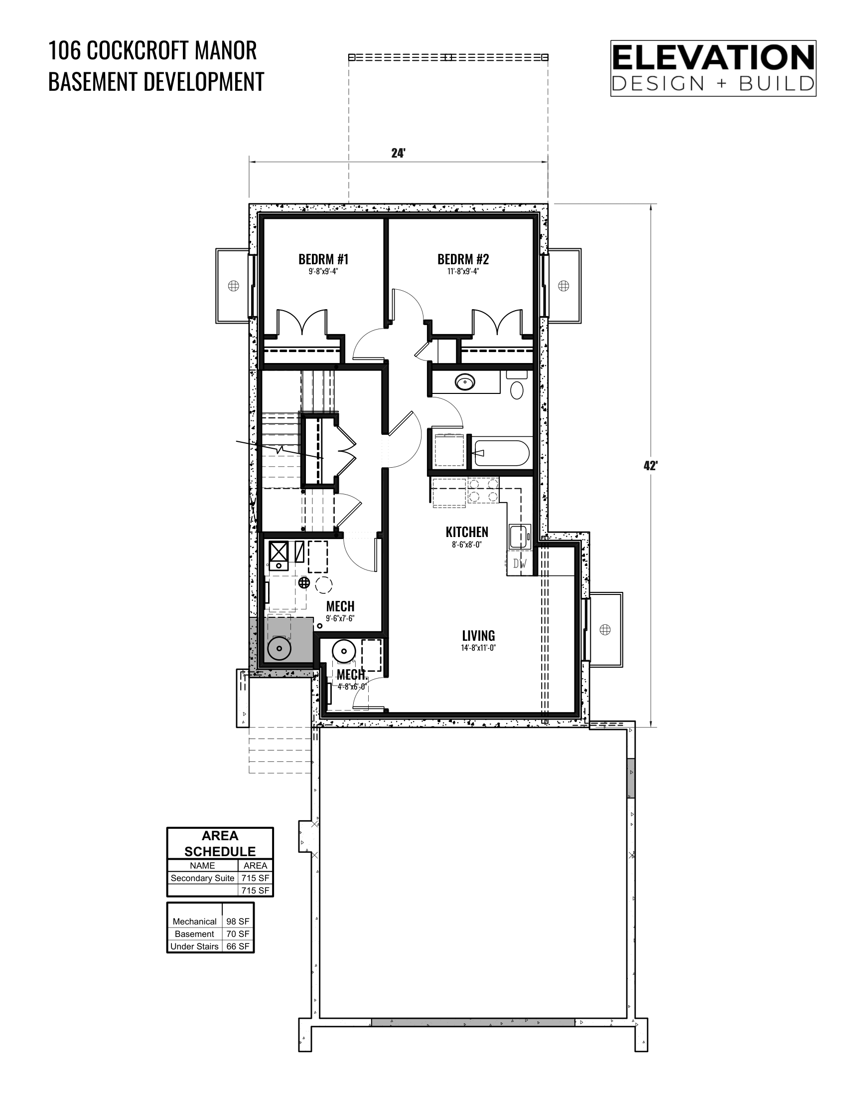
This residence offers a refined yet livable elegance, thoughtfully planned for both daily comfort and gracious entertaining. The main floor transitions smoothly from a well-proportioned kitchen and dining area into an inviting living room, complemented by a generous walk-in pantry, a versatile flex room, and an organized mudroom entry from the garage. Upstairs, a serene primary suite with a spacious walk-in closet is paired with two additional bedrooms, a convenient laundry room, and a bonus room ideal for relaxing or unwinding. A well-appointed secondary suite on the lower level, complete with its own kitchen and living area, adds exceptional flexibility, while the covered deck extends the living space outdoors for year-round enjoyment.
Thoughtfully designed living, elevated by versatile space and everyday elegance.
This residence at 106 Cockcroft Manor combines refined style with intelligent practicality, offering approximately 2,256 sq. ft. of thoughtfully planned space above grade plus a developed secondary suite in the basement. The main floor welcomes you with a cohesive kitchen, dining, and living area that feels both inviting and elevated, complemented by a generous walk-in pantry, an organized mudroom, and a flexible room ideal for a home office, playroom, or quiet retreat. Upstairs, a tranquil primary suite with a spacious walk-in closet is paired with two additional bedrooms, a convenient laundry room, and a comfortable bonus room that enhances day-to-day living. The lower level adds a self-contained secondary suite with its own kitchen and living area, offering meaningful flexibility for extended family, guests, or potential rental income, while a covered deck extends the living experience outdoors for enjoyment in every season.




